Строительство коттеджей из газобетона и керамических блоков под ключ

Country 149

Общая плошадь 149 м2
Количество этажей 2
Количество спален 3
Стоимость дома 4 020 000 руб.
Материал
Выбрать комплектацию
Получить расчёт
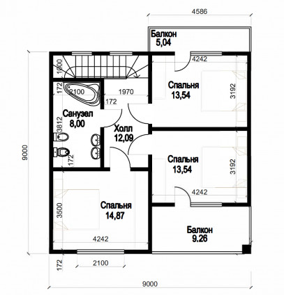
Планировка
1 этаж
2 этаж
Материал
Комплектация
Описание работы Стандарт
от  4 020 000  руб
Теплый контур
от  5 025 000  руб
"White box"
от  7 035 000  руб
Под ключ
от  8 040 000  руб
Подготовительные работы
Индивидуальное проектирование дома
Выезд инженера на объект для оценки состояния участка и грунтов
Геологические изыскания
Фундамент
Работы нулевого цикла, отсяпка основания из песка и щебня
Монолитная ж/б плита (мин. 30 см.)
Стены
Внешние несущие стены/Устройство оконных и дверных перемычек/Устройство армопоясов
Перегородки
Возведение внутренних перегородок
Вентканалы и дымоходы
Устройство под монтаж дымоходов и вытяжек
Устройство шахты дымохода и вентканалов
Перекрытия
Перекрытие из ж/б пустотных плит/монолитное перекрытие (для двухэтажных домов с полноразмерным вторым этажом)
Стропильная система
Монтаж стропильной системы
Утепление кровли
Утепление кровли (Rockwool 200мм.)
Кровельное покрытие
Кровельное покрытие из металлочерепицы
Фасад
Внешняя отделка фасада (штукатурка с утеплителем)
Водосточная система
Устройство водосточной системы
Подшив свесов кровли
Обшивка свесов кровли
Отмостка
Устройство бетонной отмостки
Отделка цоколя
Отделка цоколя камнем/штукатуркой
Окна
Окна и балконные двери пластиковые (Двухкамерные Rehau, Melke)
Наружная входная дверь
Наружная металлическая дверь (утеплённая)
Внутренние инженерные коммуникации
Монтаж системы отопления/Водоснабжения/Водоотведения/Электрика/Монтаж щитка
Внутренняя отделка
Штукатурка внутренних стен
Стяжка пола
Финишная отделка внутренних стен, пола, потолков, установка межкомнатных дверей (Базовые решения от Lemana RPO)
Описание

Представляем вам проект "Country 149" – двухэтажный дом площадью 149 м², воплощающий в себе мечту о комфортной загородной жизни. Этот дом станет идеальным выбором для семьи, ценящей тепло домашнего очага, близость к природе и функциональность каждого квадратного метра.

Архитектурный стиль:

Архитектурный стиль дома "Country 149" можно охарактеризовать как сочетание элементов стиля кантри и современной классики. Этот стиль отличается:

Теплотой и уютом: Использование натуральных материалов в отделке фасада – камня, дерева и штукатурки – придает дому особый шарм и создает атмосферу тепла и уюта .

Простыми формами и линиями: Дом имеет простую, но функциональную планировку с четкими линиями и пропорциями. Двускатная крыша и прямоугольная форма дома создают ощущение надежности и стабильности.

Большими окнами: Окна большого размера обеспечивают хорошее естественное освещение и открывают прекрасный вид на окружающий ландшафт. Наличие балкона добавляет дому изысканности и позволяет наслаждаться свежим воздухом, не выходя из дома.

Отделкой фасада: Комбинированная отделка фасада, сочетающая различные материалы и текстуры, придает дому индивидуальность и выразительность. Камень и дерево гармонично сочетаются друг с другом, создавая неповторимый облик дома.

Светлой цветовой гаммой: Использование светлых, пастельных тонов в отделке фасада придает дому легкость и воздушность, визуально увеличивая его размеры.

Преимущества проекта "Country 149":

Оптимальная площадь и планировка: Дом "Country 149" имеет оптимальную площадь для комфортного проживания семьи из 3-4 человек. В доме предусмотрены три спальни, просторная гостиная, кухня-столовая и два санузла, что обеспечивает удобство и функциональность для всех членов семьи.

Энергоэффективные материалы: При строительстве дома используются энергоэффективные материалы, такие как газобетон, керамические блоки и кирпич. Они обладают высокими теплоизоляционными свойствами, что позволяет снизить затраты на отопление зимой и на кондиционирование летом.

Экологичность: Дом строится из экологически чистых материалов, безопасных для здоровья человека и окружающей среды. Это делает его идеальным выбором для тех, кто заботится о своем здоровье и будущем своих детей.

Вариативность отделки: Вы можете выбрать различные варианты отделки фасада и интерьера дома, чтобы создать уникальный облик, соответствующий вашему вкусу и предпочтениям . Мы предлагаем широкий выбор отделочных материалов, цветовых решений и стилей оформления.

Доступная цена: Несмотря на высокое качество строительства и используемые материалы, цена дома "Country 149" остается доступной для многих семей. Мы предлагаем различные варианты финансирования, включая ипотеку и рассрочку.

Наличие балкона: Балкон придает дому особый шарм и позволяет наслаждаться свежим воздухом и красивым видом, не выходя из дома.

Современные инженерные системы: В доме предусмотрены все необходимые современные инженерные системы: отопление, водоснабжение, канализация, электроснабжение и вентиляция. Они обеспечивают комфортное и безопасное проживание в доме в любое время года.

Дополнительные преимущества:

Возможность строительства дома "под ключ", что избавит вас от хлопот, связанных с организацией строительных работ и поиском подрядчиков .

Гарантия на все виды работ и материалы, что обеспечит вам уверенность в качестве и долговечности вашего дома .

Индивидуальный подход к каждому клиенту, что позволит учесть все ваши пожелания и создать дом вашей мечты .

"Country 149" - это не просто дом, это место, где рождаются счастливые воспоминания и создается уютная атмосфера для вашей семьи!

Свяжитесь с нами сегодня, чтобы узнать больше о проекте "Country 149" и начать строительство дома вашей мечты!  Мы поможем вам выбрать оптимальный вариант планировки, отделки и комплектации дома, а также предложим выгодные условия финансирования.

Обзоры построенных проектов
Отзывы наших клиентов
Уже есть проект, эскиз или картинка?
Мы оперативно изготовим проект, рассчитаем и приступим к строительству в течение 1 недели!
Прикрепите файл к Вашему сообщению и мы сразу рассчитаем стоимость
Рассчитать
стоимость
Экскурсия
по объектам
Избранное 0 Видео-консультация