Строительство коттеджей из газобетона и керамических блоков под ключ

Country 234

Общая плошадь 234 м2
Количество этажей 2
Количество спален 4
Стоимость дома 6 318 000 руб.
Материал
Выбрать комплектацию
Получить расчёт
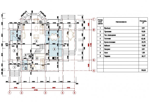
Планировка
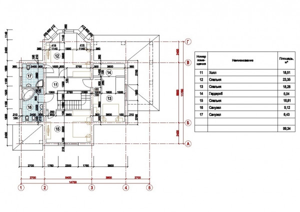
1 этаж
2 этаж
Материал
Комплектация
Описание работы Стандарт
от  6 318 000  руб
Теплый контур
от  7 897 500  руб
"White box"
от  11 056 500  руб
Под ключ
от  12 636 000  руб
Подготовительные работы
Индивидуальное проектирование дома
Выезд инженера на объект для оценки состояния участка и грунтов
Геологические изыскания
Фундамент
Работы нулевого цикла, отсяпка основания из песка и щебня
Монолитная ж/б плита (мин. 30 см.)
Стены
Внешние несущие стены/Устройство оконных и дверных перемычек/Устройство армопоясов
Перегородки
Возведение внутренних перегородок
Вентканалы и дымоходы
Устройство под монтаж дымоходов и вытяжек
Устройство шахты дымохода и вентканалов
Перекрытия
Перекрытие из ж/б пустотных плит/монолитное перекрытие (для двухэтажных домов с полноразмерным вторым этажом)
Стропильная система
Монтаж стропильной системы
Утепление кровли
Утепление кровли (Rockwool 200мм.)
Кровельное покрытие
Кровельное покрытие из металлочерепицы
Фасад
Внешняя отделка фасада (штукатурка с утеплителем)
Водосточная система
Устройство водосточной системы
Подшив свесов кровли
Обшивка свесов кровли
Отмостка
Устройство бетонной отмостки
Отделка цоколя
Отделка цоколя камнем/штукатуркой
Окна
Окна и балконные двери пластиковые (Двухкамерные Rehau, Melke)
Наружная входная дверь
Наружная металлическая дверь (утеплённая)
Внутренние инженерные коммуникации
Монтаж системы отопления/Водоснабжения/Водоотведения/Электрика/Монтаж щитка
Внутренняя отделка
Штукатурка внутренних стен
Стяжка пола
Финишная отделка внутренних стен, пола, потолков, установка межкомнатных дверей (Базовые решения от Lemana RPO)
Описание

Представляем проект "Country 234" – двухэтажный дом площадью 234 м², созданный для тех, кто ценит элегантность, комфорт и функциональность. Этот дом станет идеальным местом для вашей семьи, где каждый сможет наслаждаться уютом и гармонией в окружении прекрасной природы.

Архитектурный стиль:

Архитектурный стиль дома "Country 234" – это изысканное сочетание классического стиля и элементов английской архитектуры, что создает атмосферу респектабельности и уюта:

Двускатная крыша: Традиционная двускатная крыша является классическим элементом английского стиля, обеспечивая надежную защиту от непогоды и придавая дому элегантный и солидный вид .

Облицовка кирпичом: Фасад дома облицован кирпичом благородного коричневого оттенка, что придает ему солидность и респектабельность. Белые декоративные элементы в кирпичной кладке придают дому особый шарм и индивидуальность .

Эркер: Наличие эркера увеличивает площадь внутренних помещений и обеспечивает хорошее естественное освещение 

Большие окна: Большие окна с белыми рамами создают контраст с кирпичной кладкой и обеспечивают прекрасный вид на окружающий ландшафт .

Терраса: Просторная терраса с колоннами является идеальным местом для отдыха на свежем воздухе и проведения времени с семьей и друзьями .

Преимущества проекта "Country 234":

Просторная планировка для большой семьи: Дом "Country 234" предлагает просторную и функциональную планировку, включающую четыре спальни, просторную гостиную, кухню-столовую, два санузла и другие необходимые помещения. Это обеспечивает комфортное проживание для семьи с детьми .

Энергоэффективные материалы: При строительстве дома используются энергоэффективные материалы, такие как газобетон, керамические блоки и кирпич, что позволяет снизить затраты на отопление и кондиционирование .

Надежность и долговечность: Дом строится с соблюдением всех строительных норм и правил, что гарантирует его надежность и долговечность. Мы используем только качественные материалы и проверенные технологии строительства 

Экологически чистые материалы: Мы заботимся о вашем здоровье и используем только экологически чистые материалы, безопасные для человека и окружающей среды .

Современные инженерные системы: Дом оснащен современными инженерными системами, обеспечивающими комфортное и безопасное проживание в любое время года .

Гараж или навес для автомобиля: Предусмотрено место для парковки автомобиля – гараж или навес, что обеспечит его защиту от непогоды и удобный доступ .

Возможность индивидуализации: Мы предлагаем возможность индивидуализации планировки и отделки дома, чтобы создать пространство, идеально соответствующее вашим потребностям и предпочтениям .

Дополнительные преимущества:

Уютный камин: В гостиной можно установить камин, который станет центром притяжения для всей семьи и создаст атмосферу тепла и уюта .

Терраса: Наличие террасы позволит вам наслаждаться свежим воздухом и проводить время на открытом воздухе в комфортной обстановке.

Ландшафтный дизайн: Прилегающая территория может быть оформлена с использованием элементов ландшафтного дизайна, что придаст дому дополнительную привлекательность и создаст комфортную среду для отдыха на свежем воздухе.

Удобное расположение: Дом расположен в экологически чистом районе с развитой инфраструктурой, что обеспечивает комфортное проживание и удобный доступ ко всем необходимым объектам.

Безопасность: Мы предлагаем различные варианты обеспечения безопасности дома, такие как установка сигнализации, видеонаблюдения и системы контроля доступа.

Индивидуальный подход: Мы предлагаем индивидуальный подход к каждому клиенту, учитывая все ваши пожелания и требования при проектировании и строительстве дома.

"Country 234" – это не просто дом, это ваш уютный уголок, где вы будете чувствовать себя комфортно и безопасно, где будут расти ваши дети и внуки, где будет царить любовь и взаимопонимание!

Свяжитесь с нами сегодня, чтобы узнать больше о проекте "Country 234" и сделать первый шаг к дому своей мечты! Мы поможем вам выбрать оптимальный вариант планировки, отделки и комплектации дома, а также предложим выгодные условия финансирования.

Обзоры построенных проектов
Отзывы наших клиентов
Уже есть проект, эскиз или картинка?
Мы оперативно изготовим проект, рассчитаем и приступим к строительству в течение 1 недели!
Прикрепите файл к Вашему сообщению и мы сразу рассчитаем стоимость
Рассчитать
стоимость
Экскурсия
по объектам
Избранное 0 Видео-консультация