Строительство коттеджей из газобетона и керамических блоков под ключ

Country 242

Общая плошадь 242 м2
Количество этажей 2
Количество спален 4
Стоимость дома 6 534 000 руб.
Материал
Выбрать комплектацию
Получить расчёт
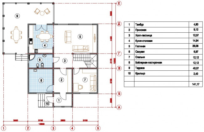
Планировка
1 этаж
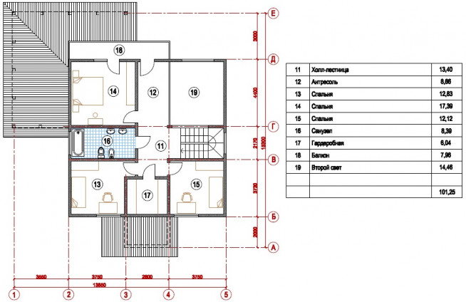
2 этаж
Материал
Комплектация
Описание работы Стандарт
от  6 534 000  руб
Теплый контур
от  8 167 500  руб
"White box"
от  11 434 500  руб
Под ключ
от  13 068 000  руб
Подготовительные работы
Индивидуальное проектирование дома
Выезд инженера на объект для оценки состояния участка и грунтов
Геологические изыскания
Фундамент
Работы нулевого цикла, отсяпка основания из песка и щебня
Монолитная ж/б плита (мин. 30 см.)
Стены
Внешние несущие стены/Устройство оконных и дверных перемычек/Устройство армопоясов
Перегородки
Возведение внутренних перегородок
Вентканалы и дымоходы
Устройство под монтаж дымоходов и вытяжек
Устройство шахты дымохода и вентканалов
Перекрытия
Перекрытие из ж/б пустотных плит/монолитное перекрытие (для двухэтажных домов с полноразмерным вторым этажом)
Стропильная система
Монтаж стропильной системы
Утепление кровли
Утепление кровли (Rockwool 200мм.)
Кровельное покрытие
Кровельное покрытие из металлочерепицы
Фасад
Внешняя отделка фасада (штукатурка с утеплителем)
Водосточная система
Устройство водосточной системы
Подшив свесов кровли
Обшивка свесов кровли
Отмостка
Устройство бетонной отмостки
Отделка цоколя
Отделка цоколя камнем/штукатуркой
Окна
Окна и балконные двери пластиковые (Двухкамерные Rehau, Melke)
Наружная входная дверь
Наружная металлическая дверь (утеплённая)
Внутренние инженерные коммуникации
Монтаж системы отопления/Водоснабжения/Водоотведения/Электрика/Монтаж щитка
Внутренняя отделка
Штукатурка внутренних стен
Стяжка пола
Финишная отделка внутренних стен, пола, потолков, установка межкомнатных дверей (Базовые решения от Lemana RPO)
Описание

Представляем вам дом «Country 242», прекрасный загородный дом, сочетающий в себе элегантность, комфорт и функциональность. Этот просторный двухэтажный дом площадью 242 м² предлагает четыре спальни, что делает его идеальным выбором для семей с детьми или для тех, кто любит простор и свободу.

Архитектурный стиль:

Дом «Country 242» выполнен в привлекательном загородном стиле, сочетающем в себе элементы традиционной и современной архитектуры. Фасад дома украшен отделкой из натурального камня и дерева, что придает ему теплый и уютный вид. Большая крытая терраса с декоративными цветочными ящиками создает прекрасное место для отдыха на свежем воздухе и наслаждения окружающей природой.

Преимущества проекта:

Просторная планировка: Дом «Country 242» предлагает просторную и функциональную планировку, которая идеально подходит для комфортной жизни семьи. На первом этаже расположены просторная гостиная с камином, кухня-столовая и гостевой санузел, а на втором этаже — три спальни и ванная комната.

Естественное освещение: Большие окна обеспечивают достаточное количество естественного света во всех комнатах дома, создавая светлую и уютную атмосферу.

Высококачественные материалы: Дом «Country 242» построен из высококачественных материалов, что гарантирует его долговечность и надежность. Внешние стены выполнены из газобетона, керамоблоков или кирпича (на выбор), что обеспечивает отличную тепло- и звукоизоляцию.

Энергоэффективность: Дом «Country 242» разработан с учетом современных требований к энергоэффективности, что позволяет снизить затраты на отопление и кондиционирование воздуха.

Индивидуальный подход: Мы предлагаем возможность внесения изменений в проект дома «Country 242» в соответствии с вашими индивидуальными потребностями и предпочтениями. Вы можете выбрать отделочные материалы, планировку комнат и другие параметры, чтобы создать дом своей мечты.

Стоимость и комплектация:

В стоимость дома «Country 242»  входит:

Фундамент

Стены и перекрытия

Кровля

Окна и двери

Внешняя отделка

Дополнительно вы можете заказать внутреннюю отделку, установку сантехники и другие работы.

Дом «Country 242» — это идеальный выбор для тех, кто мечтает о комфортном и уютном загородном доме, где можно наслаждаться природой и проводить время с семьей и друзьями. Свяжитесь с нами сегодня, чтобы узнать больше об этом прекрасном проекте и начать строительство дома своей мечты!



Обзоры построенных проектов
Отзывы наших клиентов
Уже есть проект, эскиз или картинка?
Мы оперативно изготовим проект, рассчитаем и приступим к строительству в течение 1 недели!
Прикрепите файл к Вашему сообщению и мы сразу рассчитаем стоимость
Рассчитать
стоимость
Экскурсия
по объектам
Избранное 0 Видео-консультация