Строительство коттеджей из газобетона и керамических блоков под ключ

Country 296

Общая плошадь 296 м2
Количество этажей 2
Количество спален 5
Стоимость дома 7 992 000 руб.
Материал
Выбрать комплектацию
Получить расчёт
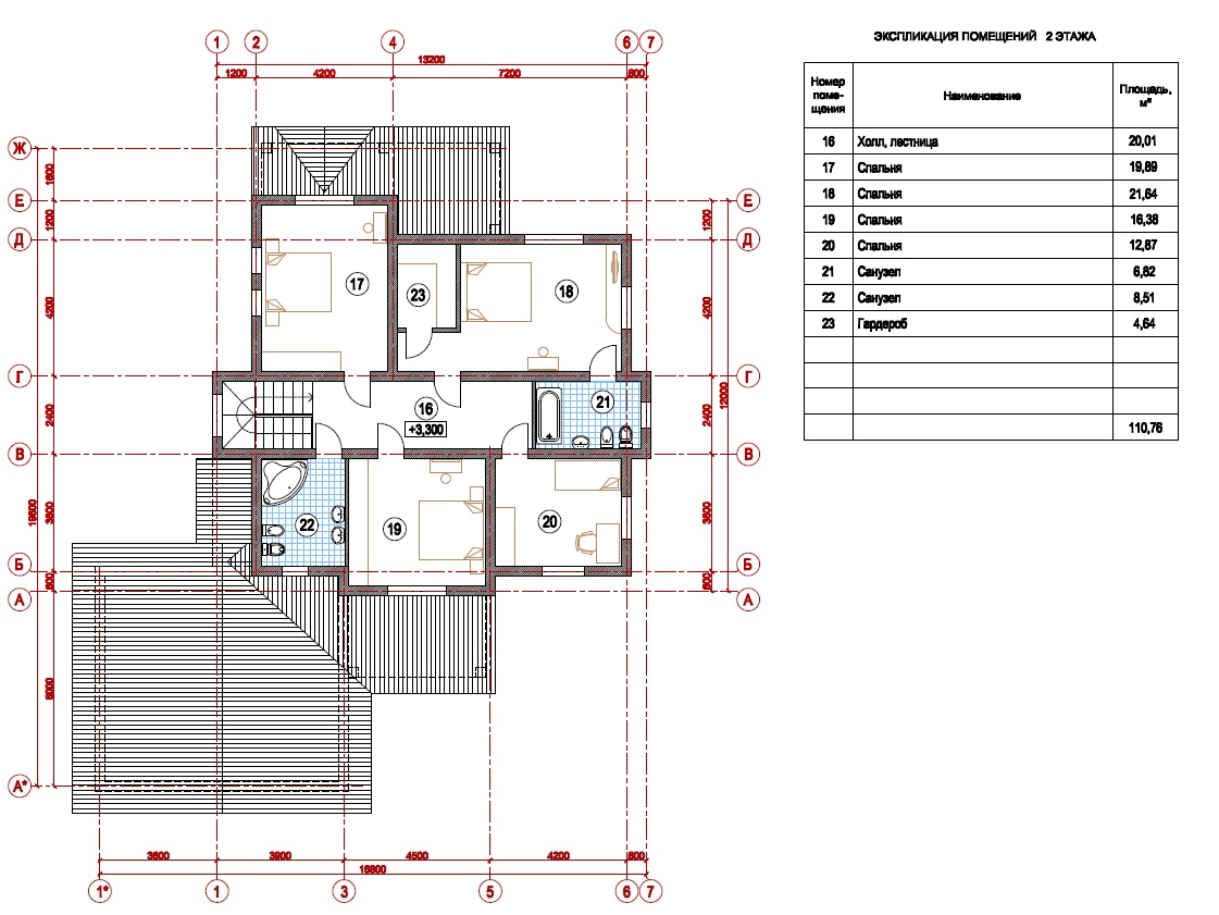
Планировка
1 этаж
2 этаж
Материал
Комплектация
Описание работы Стандарт
от  7 992 000  руб
Теплый контур
от  9 990 000  руб
"White box"
от  13 986 000  руб
Под ключ
от  15 984 000  руб
Подготовительные работы
Индивидуальное проектирование дома
Выезд инженера на объект для оценки состояния участка и грунтов
Геологические изыскания
Фундамент
Работы нулевого цикла, отсяпка основания из песка и щебня
Монолитная ж/б плита (мин. 30 см.)
Стены
Внешние несущие стены/Устройство оконных и дверных перемычек/Устройство армопоясов
Перегородки
Возведение внутренних перегородок
Вентканалы и дымоходы
Устройство под монтаж дымоходов и вытяжек
Устройство шахты дымохода и вентканалов
Перекрытия
Перекрытие из ж/б пустотных плит/монолитное перекрытие (для двухэтажных домов с полноразмерным вторым этажом)
Стропильная система
Монтаж стропильной системы
Утепление кровли
Утепление кровли (Rockwool 200мм.)
Кровельное покрытие
Кровельное покрытие из металлочерепицы
Фасад
Внешняя отделка фасада (штукатурка с утеплителем)
Водосточная система
Устройство водосточной системы
Подшив свесов кровли
Обшивка свесов кровли
Отмостка
Устройство бетонной отмостки
Отделка цоколя
Отделка цоколя камнем/штукатуркой
Окна
Окна и балконные двери пластиковые (Двухкамерные Rehau, Melke)
Наружная входная дверь
Наружная металлическая дверь (утеплённая)
Внутренние инженерные коммуникации
Монтаж системы отопления/Водоснабжения/Водоотведения/Электрика/Монтаж щитка
Внутренняя отделка
Штукатурка внутренних стен
Стяжка пола
Финишная отделка внутренних стен, пола, потолков, установка межкомнатных дверей (Базовые решения от Lemana RPO)
Описание

Представляем вам дом «Country 296» — идеальное решение для тех, кто ищет просторный и комфортный дом для большой семьи. Этот роскошный двухэтажный дом площадью 296 м² с пятью спальнями, двумя гаражами и всеми современными удобствами станет идеальным местом для жизни и отдыха.

Архитектурный стиль:

Дом «Country 296» выполнен в классическом загородном стиле с элементами современной архитектуры. Фасад дома украшен отделкой из натурального камня и кирпича, что придает ему элегантный и респектабельный вид.

Преимущества проекта:

Просторная планировка: Дом «Country 296» предлагает просторную и функциональную планировку, идеально подходящую для комфортной жизни большой семьи. На первом этаже расположены просторная гостиная, кухня-столовая, гостевой санузел и две гаражные зоны, а на втором этаже — пять спален и две ванные комнаты.

Естественное освещение: Большие окна обеспечивают достаточное количество естественного света во всех комнатах дома, создавая светлую и уютную атмосферу.

Высококачественные материалы: Дом «Country 296» построен из высококачественных материалов, что гарантирует его долговечность и надежность. Внешние стены выполнены из газобетона, керамоблоков или кирпича (на выбор), что обеспечивает отличную тепло- и звукоизоляцию.

Энергоэффективность: Дом «Country 296» разработан с учетом современных требований к энергоэффективности, что позволяет снизить затраты на отопление и кондиционирование воздуха.

Два гаража: Дом имеет два встроенных гаража для удобной и безопасной парковки автомобилей.

Индивидуальный подход: Мы предлагаем возможность внесения изменений в проект дома «Country 296» в соответствии с вашими индивидуальными потребностями и предпочтениями. Вы можете выбрать отделочные материалы, планировку комнат и другие параметры, чтобы создать дом своей мечты.

Обзоры построенных проектов
Отзывы наших клиентов
Уже есть проект, эскиз или картинка?
Мы оперативно изготовим проект, рассчитаем и приступим к строительству в течение 1 недели!
Прикрепите файл к Вашему сообщению и мы сразу рассчитаем стоимость
Рассчитать
стоимость
Экскурсия
по объектам
Избранное 0 Видео-консультация