Строительство коттеджей из газобетона и керамических блоков под ключ

Modern 193

Общая плошадь 193 м2
Количество этажей 2
Количество спален 4
Стоимость дома 5 211 000 руб.
Материал
Выбрать комплектацию
Получить расчёт
Планировка
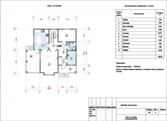
1 этаж
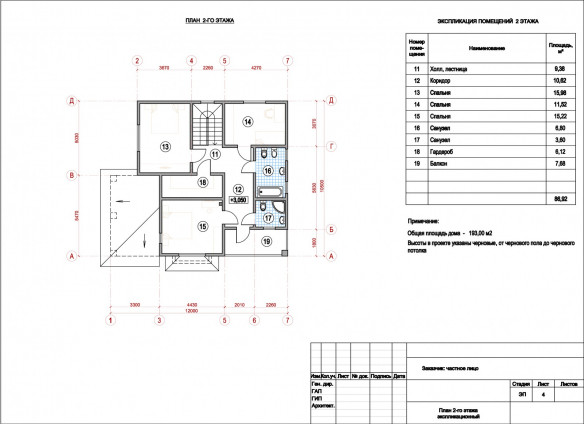
2 этаж
Материал
Комплектация
Описание работы Стандарт
от  5 211 000  руб
Теплый контур
от  6 513 750  руб
"White box"
от  9 119 250  руб
Под ключ
от  10 422 000  руб
Подготовительные работы
Индивидуальное проектирование дома
Выезд инженера на объект для оценки состояния участка и грунтов
Геологические изыскания
Фундамент
Работы нулевого цикла, отсяпка основания из песка и щебня
Монолитная ж/б плита (мин. 30 см.)
Стены
Внешние несущие стены/Устройство оконных и дверных перемычек/Устройство армопоясов
Перегородки
Возведение внутренних перегородок
Вентканалы и дымоходы
Устройство под монтаж дымоходов и вытяжек
Устройство шахты дымохода и вентканалов
Перекрытия
Перекрытие из ж/б пустотных плит/монолитное перекрытие (для двухэтажных домов с полноразмерным вторым этажом)
Стропильная система
Монтаж стропильной системы
Утепление кровли
Утепление кровли (Rockwool 200мм.)
Кровельное покрытие
Кровельное покрытие из металлочерепицы
Фасад
Внешняя отделка фасада (штукатурка с утеплителем)
Водосточная система
Устройство водосточной системы
Подшив свесов кровли
Обшивка свесов кровли
Отмостка
Устройство бетонной отмостки
Отделка цоколя
Отделка цоколя камнем/штукатуркой
Окна
Окна и балконные двери пластиковые (Двухкамерные Rehau, Melke)
Наружная входная дверь
Наружная металлическая дверь (утеплённая)
Внутренние инженерные коммуникации
Монтаж системы отопления/Водоснабжения/Водоотведения/Электрика/Монтаж щитка
Внутренняя отделка
Штукатурка внутренних стен
Стяжка пола
Финишная отделка внутренних стен, пола, потолков, установка межкомнатных дверей (Базовые решения от Lemana RPO)
Описание

Строительная компания modul-dom-ug.ru представляет эксклюзивный проект загородного дома "Modern 193" – идеальное сочетание стильной архитектуры, функциональной планировки и высококачественных материалов. Этот двухэтажный дом площадью 193 м² станет воплощением вашей мечты о комфортабельном и современном жилье.

Архитектурный стиль:

Дом "Modern 193" выполнен в стиле современной классики с элементами неоклассицизма.  Гармоничное сочетание натуральных материалов и строгих геометрических форм создает элегантный и  утонченный облик.  Фасад здания, представленный на визуализации,  отличается использованием различных текстур: облицовка из светлого камня (возможно, искусственного) придает солидность и благородство,  а коричневая черепичная кровля вносит ноту тепла и уюта. Большие окна панорамного типа, обеспечивающие обильное естественное освещение,  подчеркивают современность архитектурного решения.  Изюминкой фасада является симметричная компоновка оконных проемов и  декоративные элементы,  сбалансированно распределенные по всей площади стен.  Отсутствие вычурности и  приверженность к лаконичным формам  делают дом  актуальным и стильным на долгие годы.  Небольшая, аккуратно оформленная терраса  добавляет функциональности и создает зону для отдыха на свежем воздухе.

Преимущества проекта:

 Просторная планировка:  Дом "Modern 193" предлагает  четыре уютные спальни,  что идеально подходит для большой семьи. Продуманное расположение комнат обеспечивает  максимальную приватность и удобство.  Гостиная с панорамным остеклением создает ощущение простора и наполняет дом естественным светом. Просторная кухня, совмещенная со столовой,  превращает процесс приготовления пищи и приема гостей в настоящее удовольствие.  Наличие нескольких санузлов обеспечивает комфорт для всех жильцов.

 Функциональность и эргономика:  Проект тщательно продуман с точки зрения  эргономики и функциональности.  Все помещения имеют оптимальные размеры и удобную планировку.  Встроенные шкафы и ниши  помогают рационально использовать пространство и  сохранять порядок.  Удобное расположение лестницы обеспечивает  легкий доступ на второй этаж.

 Высококачественные материалы:  Для строительства дома используются только  высококачественные  и экологически чистые материалы. В проекте предусмотрена возможность выбора между газобетоном, керамоблоками и кирпичом, что позволяет подобрать оптимальный вариант с учетом  индивидуальных предпочтений и  бюджета.  Это гарантирует  долговечность, надежность и  отличную теплоизоляцию.

Энергоэффективность:  Проект разработан с учетом  современных требований к энергоэффективности.  Оптимальная теплоизоляция  стен,  крыши и фундамента  позволяет  снизить  расходы на отопление и  кондиционирование.  Большие окна,  ориентированные на юг,  максимизируют  поступление солнечного света и  тепла.

 Стильный внешний вид:  Дом "Modern 193"  выглядит современно и  стильно.  Его  элегантный  дизайн  подойдет  к  любому ландшафту  и  гармонично  впишется в  окружающую  среду.

 Доступная стоимость:  Несмотря на высокое качество  и  широкий функционал,  дом "Modern 193"  предлагается  по  доступной  цене.  Это  делает  его  отличным  вариантом для  семей,  мечтающих о  собственном  комфортабельном  доме.

 Быстрая реализация:  Строительная компания modul-dom-ug.ru гарантирует  быструю и  качественную  реализацию проекта.  Наличие  опытной  команды  профессионалов  позволяет  свести к  минимуму  сроки  строительства  и  обеспечить  высокий  уровень  качества.

Дом "Modern 193" – это  не просто  здание, а  место,  где  вы  сможете  наслаждаться  уютной  атмосферой  и  полноценной  жизнью.  Обращайтесь в компанию modul-dom-ug.ru, чтобы  реализовать  свою  мечту  о  современном  и  комфортабельном  загородном  доме!


Обзоры построенных проектов
Отзывы наших клиентов
Уже есть проект, эскиз или картинка?
Мы оперативно изготовим проект, рассчитаем и приступим к строительству в течение 1 недели!
Прикрепите файл к Вашему сообщению и мы сразу рассчитаем стоимость
Рассчитать
стоимость
Экскурсия
по объектам
Избранное 0 Видео-консультация