Строительство коттеджей из газобетона и керамических блоков под ключ

Modern 215

Общая плошадь 215 м2
Количество этажей 2
Количество спален 4
Стоимость дома 5 805 000 руб.
Материал
Выбрать комплектацию
Получить расчёт
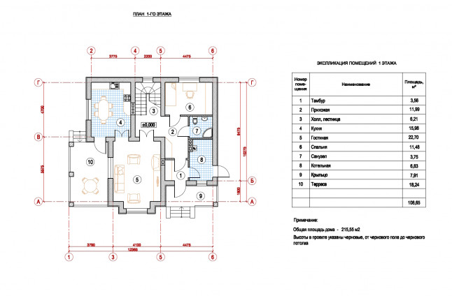
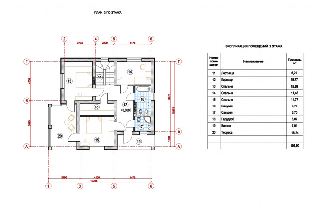
Планировка
1 этаж
2 этаж
Материал
Комплектация
Описание работы Стандарт
от  5 805 000  руб
Теплый контур
от  7 256 250  руб
"White box"
от  10 158 750  руб
Под ключ
от  11 610 000  руб
Подготовительные работы
Индивидуальное проектирование дома
Выезд инженера на объект для оценки состояния участка и грунтов
Геологические изыскания
Фундамент
Работы нулевого цикла, отсяпка основания из песка и щебня
Монолитная ж/б плита (мин. 30 см.)
Стены
Внешние несущие стены/Устройство оконных и дверных перемычек/Устройство армопоясов
Перегородки
Возведение внутренних перегородок
Вентканалы и дымоходы
Устройство под монтаж дымоходов и вытяжек
Устройство шахты дымохода и вентканалов
Перекрытия
Перекрытие из ж/б пустотных плит/монолитное перекрытие (для двухэтажных домов с полноразмерным вторым этажом)
Стропильная система
Монтаж стропильной системы
Утепление кровли
Утепление кровли (Rockwool 200мм.)
Кровельное покрытие
Кровельное покрытие из металлочерепицы
Фасад
Внешняя отделка фасада (штукатурка с утеплителем)
Водосточная система
Устройство водосточной системы
Подшив свесов кровли
Обшивка свесов кровли
Отмостка
Устройство бетонной отмостки
Отделка цоколя
Отделка цоколя камнем/штукатуркой
Окна
Окна и балконные двери пластиковые (Двухкамерные Rehau, Melke)
Наружная входная дверь
Наружная металлическая дверь (утеплённая)
Внутренние инженерные коммуникации
Монтаж системы отопления/Водоснабжения/Водоотведения/Электрика/Монтаж щитка
Внутренняя отделка
Штукатурка внутренних стен
Стяжка пола
Финишная отделка внутренних стен, пола, потолков, установка межкомнатных дверей (Базовые решения от Lemana RPO)
Описание

Представляем вам проект «Modern 215» — это современный 2-х этажный дом, который сочетает в себе стильный дизайн и функциональность. С общей площадью 215 м² и 4 спальнями, этот дом идеально подходит для современной семьи, которая ценит пространство и комфорт.

Архитектурный стиль:

Дом «Modern 215» выполнен в современном стиле, который характеризуется простыми формами, большими окнами и использованием натуральных материалов. Внешний вид дома сочетает в себе камень и дерево, что придает ему элегантность и уют.

Преимущества проекта:

Простор и комфорт: Дом «Modern 215» предлагает достаточно места для комфортного проживания семьи. Просторная гостиная, кухня-столовая и спальни обеспечивают функциональность и удобство.

Современный дизайн: Дом выполнен в современном стиле, который подчеркнет вашу индивидуальность и хороший вкус.

Энергоэффективность: В доме используются современные материалы и технологии, которые обеспечивают высокую энергоэффективность и снижают затраты на отопление и кондиционирование воздуха.

Наличие балкона: Дом имеет балкон, на котором можно наслаждаться свежим воздухом и красивым видом.

Индивидуальный подход: Мы предлагаем возможность внесения изменений в проект дома «Modern 215» в соответствии с вашими индивидуальными потребностями и предпочтениями. Вы можете выбрать отделочные материалы, планировку комнат и другие параметры, чтобы создать дом своей мечты.

Стоимость и комплектация:

В стоимость дома «Modern 215»  входит:

Фундамент

Стены и перекрытия

Кровля

Окна и двери

Внешняя отделка

Дополнительно вы можете заказать внутреннюю отделку, установку сантехники и другие работы.

Дом «Modern 215» — это отличный выбор для тех, кто ценит современный стиль, комфорт и функциональность. Свяжитесь с нами сегодня, чтобы узнать больше об этом проекте и начать строительство дома своей мечты!

Обзоры построенных проектов
Отзывы наших клиентов
Уже есть проект, эскиз или картинка?
Мы оперативно изготовим проект, рассчитаем и приступим к строительству в течение 1 недели!
Прикрепите файл к Вашему сообщению и мы сразу рассчитаем стоимость
Рассчитать
стоимость
Экскурсия
по объектам
Избранное 0 Видео-консультация