Строительство коттеджей из газобетона и керамических блоков под ключ

Modern 240

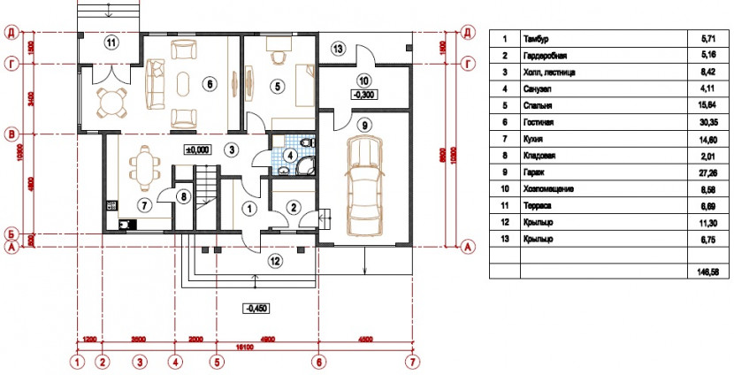
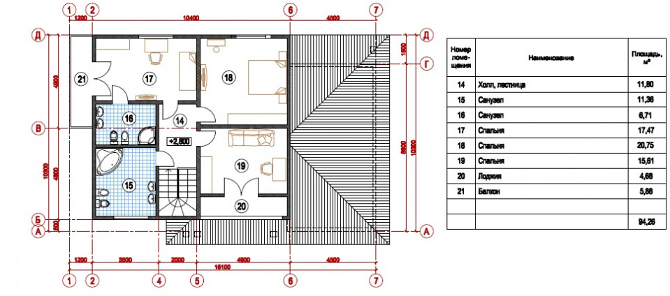
Общая плошадь 240 м2
Количество этажей 2
Количество спален 4
Стоимость дома 6 480 000 руб.
Материал
Выбрать комплектацию
Получить расчёт
Планировка
1 этаж
2 этаж
Материал
Комплектация
Описание работы Стандарт
от  6 480 000  руб
Теплый контур
от  8 100 000  руб
"White box"
от  11 340 000  руб
Под ключ
от  12 960 000  руб
Подготовительные работы
Индивидуальное проектирование дома
Выезд инженера на объект для оценки состояния участка и грунтов
Геологические изыскания
Фундамент
Работы нулевого цикла, отсяпка основания из песка и щебня
Монолитная ж/б плита (мин. 30 см.)
Стены
Внешние несущие стены/Устройство оконных и дверных перемычек/Устройство армопоясов
Перегородки
Возведение внутренних перегородок
Вентканалы и дымоходы
Устройство под монтаж дымоходов и вытяжек
Устройство шахты дымохода и вентканалов
Перекрытия
Перекрытие из ж/б пустотных плит/монолитное перекрытие (для двухэтажных домов с полноразмерным вторым этажом)
Стропильная система
Монтаж стропильной системы
Утепление кровли
Утепление кровли (Rockwool 200мм.)
Кровельное покрытие
Кровельное покрытие из металлочерепицы
Фасад
Внешняя отделка фасада (штукатурка с утеплителем)
Водосточная система
Устройство водосточной системы
Подшив свесов кровли
Обшивка свесов кровли
Отмостка
Устройство бетонной отмостки
Отделка цоколя
Отделка цоколя камнем/штукатуркой
Окна
Окна и балконные двери пластиковые (Двухкамерные Rehau, Melke)
Наружная входная дверь
Наружная металлическая дверь (утеплённая)
Внутренние инженерные коммуникации
Монтаж системы отопления/Водоснабжения/Водоотведения/Электрика/Монтаж щитка
Внутренняя отделка
Штукатурка внутренних стен
Стяжка пола
Финишная отделка внутренних стен, пола, потолков, установка межкомнатных дверей (Базовые решения от Lemana RPO)
Описание

Проект дома "Modern 240" – это двухэтажный дом площадью 240 м², сочетающий в себе элегантность классического стиля и современный комфорт. Он идеально подходит для семьи из 4 человек.

Архитектурный стиль

Дом выполнен в стиле современной классики с элементами американского стиля.

Симметрия и пропорциональность фасада создают гармоничный и элегантный вид.

Четкие линии и геометрические формы подчеркивают стабильность и надежность конструкции.

В отделке фасада используются светлые тона, которые придают дому респектабельный вид.

Декоративные элементы, такие как колонны и карнизы, придают дому изысканность.

Большие окна обеспечивают хорошее естественное освещение помещений.

Двускатная крыша является классическим элементом архитектуры и надежно защищает дом от непогоды.

Встроенный гараж обеспечивает удобство и безопасность для вашего автомобиля.

Преимущества проекта "Modern 240"

Просторная планировка: 4 спальни обеспечивают комфортное размещение для всех членов семьи .

Встроенный гараж: Защищает автомобиль от непогоды и обеспечивает дополнительное место для хранения .

Выбор материалов: Возможность строительства из газобетона, керамических блоков или кирпича позволяет выбрать оптимальный вариант по цене и характеристикам .

Энергоэффективность: Современные материалы и технологии позволяют снизить затраты на отопление и кондиционирование .

Функциональность: Продуманная планировка обеспечивает комфортное проживание для всех членов семьи .

Эстетика: Классический дизайн дома гармонично вписывается в окружающий ландшафт .

Индивидуализация: Возможность выбора отделочных материалов и цветовых решений .

Двухэтажная конструкция: Оптимальное использование площади участка .

Описание материалов

Газобетон: Легкий, прочный и теплый материал для строительства энергоэффективного дома .

Керамические блоки: Экологичный материал с хорошей тепло- и звукоизоляцией .

Кирпич: Традиционный материал, проверенный временем, обеспечивает прочность и надежность .

"Modern 240" – это отличный выбор для тех, кто ценит комфорт, стиль и надежность! .

Обзоры построенных проектов
Отзывы наших клиентов
Уже есть проект, эскиз или картинка?
Мы оперативно изготовим проект, рассчитаем и приступим к строительству в течение 1 недели!
Прикрепите файл к Вашему сообщению и мы сразу рассчитаем стоимость
Рассчитать
стоимость
Экскурсия
по объектам
Избранное 0 Видео-консультация