Строительство коттеджей из газобетона и керамических блоков под ключ

Hightech 217

Общая плошадь 217 м2
Количество этажей 2
Количество спален 3, 4
Стоимость дома 6 510 000 руб.
Материал
Выбрать комплектацию
Получить расчёт
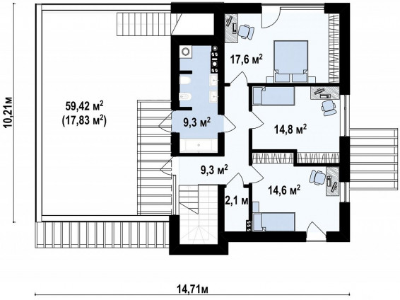
Планировка
1 этаж
2 этаж
Материал
Комплектация
Описание работы Стандарт
от  6 510 000  руб
Теплый контур
от  8 137 500  руб
"White box"
от  11 392 500  руб
Под ключ
от  13 020 000  руб
Подготовительные работы
Индивидуальное проектирование дома
Выезд инженера на объект для оценки состояния участка и грунтов
Геологические изыскания
Фундамент
Работы нулевого цикла, отсяпка основания из песка и щебня
Монолитная ж/б плита (мин. 30 см.)
Стены
Внешние несущие стены/Устройство оконных и дверных перемычек/Устройство армопоясов
Перегородки
Возведение внутренних перегородок
Вентканалы и дымоходы
Устройство под монтаж дымоходов и вытяжек
Устройство шахты дымохода и вентканалов
Перекрытия
Перекрытие из ж/б пустотных плит/монолитное перекрытие (для двухэтажных домов с полноразмерным вторым этажом)
Стропильная система
Монтаж стропильной системы
Утепление кровли
Утепление кровли (Rockwool 200мм.)
Кровельное покрытие
Кровельное покрытие из металлочерепицы
Фасад
Внешняя отделка фасада (штукатурка с утеплителем)
Водосточная система
Устройство водосточной системы
Подшив свесов кровли
Обшивка свесов кровли
Отмостка
Устройство бетонной отмостки
Отделка цоколя
Отделка цоколя камнем/штукатуркой
Окна
Окна и балконные двери пластиковые (Двухкамерные Rehau, Melke)
Наружная входная дверь
Наружная металлическая дверь (утеплённая)
Внутренние инженерные коммуникации
Монтаж системы отопления/Водоснабжения/Водоотведения/Электрика/Монтаж щитка
Внутренняя отделка
Штукатурка внутренних стен
Стяжка пола
Финишная отделка внутренних стен, пола, потолков, установка межкомнатных дверей (Базовые решения от Lemana RPO)
Описание

Дом «Hightech 217» — это современный двухэтажный дом, выполненный в стиле хай-тек. С общей площадью 217 м² и 3 или 4 спальнями, этот дом предлагает комфортное и функциональное пространство для семьи, ценящей современный дизайн и комфорт.

Архитектурный стиль:

Дом «Hightech 217» выполнен в современном стиле хай-тек . Этот стиль характеризуется строгими геометрическими формами, плоскими крышами, большими окнами и минималистичным дизайном . В отделке фасада используются современные материалы, такие как газобетон, керамоблоки или кирпич .

Преимущества проекта:

Современный дизайн: Дом «Hightech 217» отличается современным и стильным дизайном, который подчеркивает индивидуальность владельца . Минималистичные формы и использование современных материалов создают ощущение легкости и простора .

Функциональность: В доме предусмотрены все необходимые помещения для комфортной жизни семьи . Просторные спальни, гостиная, кухня-столовая и несколько ванных комнат обеспечивают удобство и функциональность .

Энергоэффективность: Дом построен с использованием современных технологий и материалов, что обеспечивает высокую энергоэффективность и снижает затраты на отопление и кондиционирование воздуха .

Терраса: Дом имеет террасу, где можно отдохнуть и насладиться свежим воздухом .

Индивидуальный подход: Мы предлагаем возможность внесения изменений в проект дома «Hightech 217» в соответствии с вашими индивидуальными потребностями и предпочтениями . Вы можете выбрать отделочные материалы, планировку комнат и другие параметры, чтобы создать дом своей мечты.

Стоимость и комплектация:

В стоимость дома «Hightech 217»  входит:

Фундамент

Стены и перекрытия

Кровля

Окна и двери

Внешняя отделка

Дополнительно вы можете заказать внутреннюю отделку, установку сантехники и другие работы.

Дом «Hightech 217» — это отличный выбор для тех, кто ценит современный стиль, комфорт и функциональность. Свяжитесь с нами сегодня, чтобы узнать больше об этом проекте и начать строительство дома своей мечты! .

Обзоры построенных проектов
Отзывы наших клиентов
Уже есть проект, эскиз или картинка?
Мы оперативно изготовим проект, рассчитаем и приступим к строительству в течение 1 недели!
Прикрепите файл к Вашему сообщению и мы сразу рассчитаем стоимость
Рассчитать
стоимость
Экскурсия
по объектам
Избранное 0 Видео-консультация