Строительство коттеджей из газобетона и керамических блоков под ключ

One 220

Общая плошадь 220 м2
Количество этажей 1
Количество спален 4
Стоимость дома 5 940 000 руб.
Материал
Выбрать комплектацию
Получить расчёт
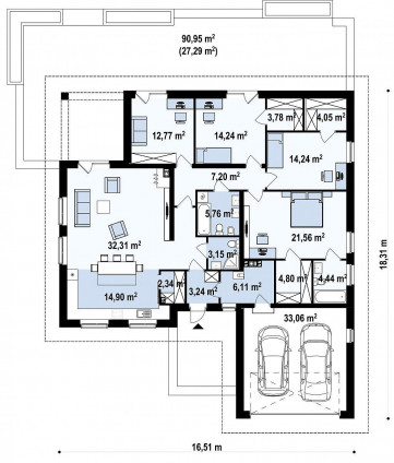
Планировка
1 этаж
Материал
Комплектация
Описание работы Стандарт
от  5 940 000  руб
Теплый контур
от  7 425 000  руб
"White box"
от  10 395 000  руб
Под ключ
от  11 880 000  руб
Подготовительные работы
Индивидуальное проектирование дома
Выезд инженера на объект для оценки состояния участка и грунтов
Геологические изыскания
Фундамент
Работы нулевого цикла, отсяпка основания из песка и щебня
Монолитная ж/б плита (мин. 30 см.)
Стены
Внешние несущие стены/Устройство оконных и дверных перемычек/Устройство армопоясов
Перегородки
Возведение внутренних перегородок
Вентканалы и дымоходы
Устройство под монтаж дымоходов и вытяжек
Устройство шахты дымохода и вентканалов
Перекрытия
Перекрытие из ж/б пустотных плит/монолитное перекрытие (для двухэтажных домов с полноразмерным вторым этажом)
Стропильная система
Монтаж стропильной системы
Утепление кровли
Утепление кровли (Rockwool 200мм.)
Кровельное покрытие
Кровельное покрытие из металлочерепицы
Фасад
Внешняя отделка фасада (штукатурка с утеплителем)
Водосточная система
Устройство водосточной системы
Подшив свесов кровли
Обшивка свесов кровли
Отмостка
Устройство бетонной отмостки
Отделка цоколя
Отделка цоколя камнем/штукатуркой
Окна
Окна и балконные двери пластиковые (Двухкамерные Rehau, Melke)
Наружная входная дверь
Наружная металлическая дверь (утеплённая)
Внутренние инженерные коммуникации
Монтаж системы отопления/Водоснабжения/Водоотведения/Электрика/Монтаж щитка
Внутренняя отделка
Штукатурка внутренних стен
Стяжка пола
Финишная отделка внутренних стен, пола, потолков, установка межкомнатных дверей (Базовые решения от Lemana RPO)
Описание

Представляем проект "One 220" – просторный и функциональный одноэтажный дом площадью 220 м², созданный для тех, кто ценит комфорт, практичность и современный дизайн. Этот дом идеально подойдет для большой семьи, стремящейся к спокойной и гармоничной жизни вдали от городской суеты, с удобным гаражом для автомобиля.

Архитектурный стиль:

Архитектурный стиль дома "One 220" представляет собой современный минимализм с элементами функционализма и скандинавского стиля, что создает светлый, уютный и практичный облик:

Прямые линии: Дом характеризуется четкими прямыми линиями и простыми геометрическими формами, что является отличительной чертой современного минимализма .

Многоскатная крыша: Многоскатная крыша придает дому интересный и динамичный вид, обеспечивает эффективный отвод воды и позволяет создать дополнительное пространство на чердаке .

Большие окна: Большие окна обеспечивают хорошее естественное освещение внутренних помещений и визуально расширяют пространство, создавая ощущение простора и свободы .

Отделка фасада: В отделке фасада используются современные материалы, такие как декоративная штукатурка светлых тонов, дерево и кирпич, что придает дому стильный и современный вид .

Продуманный дизайн: Продуманный дизайн дома обеспечивает удобную планировку и функциональное использование каждого квадратного метра .

Преимущества проекта "One 220":

Просторная планировка для большой семьи: Дом "One 220" предлагает просторную и функциональную планировку, включающую 4 спальни, просторную гостиную, кухню-столовую, несколько санузлов и другие необходимые помещения. Это обеспечивает комфортное проживание для большой семьи с детьми или для тех, кто ценит простор и функциональность .

Энергоэффективные материалы: При строительстве дома используются энергоэффективные материалы, такие как газобетон, керамические блоки и кирпич, что позволяет значительно снизить затраты на отопление и кондиционирование .

Надежность и долговечность: Дом строится с соблюдением всех строительных норм и правил, что гарантирует его надежность и долговечность. Мы используем только качественные материалы и проверенные технологии строительства 

Экологически чистые материалы: Мы заботимся о вашем здоровье и используем только экологически чистые материалы, безопасные для человека и окружающей среды .

Современные инженерные системы: Дом оснащен современными инженерными системами, обеспечивающими комфортное и безопасное проживание в любое время года .

Большая терраса: Наличие большой террасы позволяет наслаждаться свежим воздухом и проводить время на открытом воздухе в комфортной обстановке .

Возможность индивидуализации: Мы предлагаем возможность индивидуализации планировки и отделки дома, чтобы создать пространство, идеально соответствующее вашим потребностям и предпочтениям .

Одноэтажная планировка: Одноэтажная планировка обеспечивает удобство и доступность всех помещений для всех членов семьи, независимо от возраста и физических возможностей .

Встроенный гараж: Наличие встроенного гаража обеспечивает удобное хранение автомобиля и защиту от непогоды .

Дополнительные преимущества:

Камин: В гостиной можно установить камин, который станет центром притяжения для всей семьи и создаст атмосферу тепла и уюта .

Просторная кухня-столовая: Просторная кухня-столовая станет любимым местом для всей семьи, где можно собираться за обедом, ужином и просто проводить время вместе .

Ландшафтный дизайн: Прилегающая территория может быть оформлена с использованием элементов ландшафтного дизайна, что придаст дому дополнительную привлекательность и создаст комфортную среду для отдыха на свежем воздухе.

Удобное расположение: Дом расположен в экологически чистом районе с развитой инфраструктурой, что обеспечивает комфортное проживание и удобный доступ ко всем необходимым объектам.

Безопасность: Мы предлагаем различные варианты обеспечения безопасности дома, такие как установка сигнализации, видеонаблюдения и системы контроля доступа.

Индивидуальный подход: Мы предлагаем индивидуальный подход к каждому клиенту, учитывая все ваши пожелания и требования при проектировании и строительстве дома.

"One 220" – это не просто дом, это ваш просторный и уютный семейный очаг, где вы будете чувствовать себя в безопасности, где будут расти ваши дети и внуки, где всегда будет царить любовь и взаимопонимание!

Свяжитесь с нами сегодня, чтобы узнать больше о проекте "One 220" и сделать первый шаг к дому своей мечты! Мы поможем вам выбрать оптимальный вариант планировки, отделки и комплектации дома, а также предложим выгодные условия финансирования. Проекты одноэтажных домов площадью 220 кв.м. очень популярны . Вы можете выбрать проект, который подойдет им

Обзоры построенных проектов
Отзывы наших клиентов
Уже есть проект, эскиз или картинка?
Мы оперативно изготовим проект, рассчитаем и приступим к строительству в течение 1 недели!
Прикрепите файл к Вашему сообщению и мы сразу рассчитаем стоимость
Рассчитать
стоимость
Экскурсия
по объектам
Избранное 0 Видео-консультация