Строительство коттеджей из газобетона и керамических блоков под ключ

Fachwerk 320

Общая плошадь 338 м2
Количество этажей 1
Количество спален 3
Стоимость дома 60 000 000 руб.
Оставить заявку
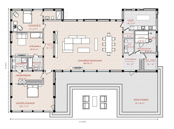
Планировка
1 этаж
Описание

ывава

Описание
Фундамент
Монолитная плита
Закладные для подключения к внешним коммуникациям
Конструктив дома
Силовой каркас из клееного бруса (несущие балки 350 - 450 мм. / фасадные 200 - 350)
Стены, перекрытия (черновой пол - шпунтовая доска 75 мм.), окраска фасада в заводских условиях
Кровля (натуральная черепица BRAAS)
Фасадные окна: Безрамное остекление по технологии фахверк. Энергоэффективные стеклопакеты толщиной 40 мм. (энергосберегающее низкоэмиссионное стекло Guardian 6 см, наполнение стеклопакета инертным газом — аргоном, двухкомпонентный силиконовый герметик Dow Corning)
Энергоэффективное утепление стен (150 мм.) и кровли (200 мм.)
Входная дверь: Металлическая утепленная
Перечень работ
Работы нулевого цикла, монолитные работы
Сборка силового каркаса, фасадов (внешние стены), покраска внешней фахверковой части
Утепление стен, кровли (полный "пирог"), фасадные отделочные работы
Обзоры построенных проектов
Отзывы наших клиентов
Цветовые решения
Уже есть проект, эскиз или картинка?
Мы оперативно изготовим проект, рассчитаем и приступим к строительству в течение 1 недели!
Прикрепите файл к Вашему сообщению и мы сразу рассчитаем стоимость
Рассчитать
стоимость
Экскурсия
по объектам
Избранное 0 Видео-консультация