Строительство коттеджей из газобетона и керамических блоков под ключ

Modern 273

Общая плошадь 273 м2
Количество этажей 2
Количество спален 4
Стоимость дома 7 371 000 руб.
Материал
Выбрать комплектацию
Получить расчёт
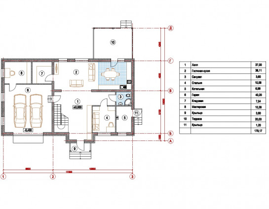
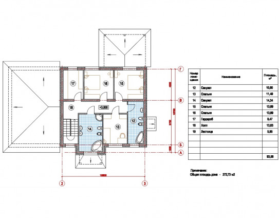
Планировка
1 этаж
2 этаж
Материал
Комплектация
Описание работы Стандарт
от  7 371 000  руб
Теплый контур
от  9 213 750  руб
"White box"
от  12 899 250  руб
Под ключ
от  14 742 000  руб
Подготовительные работы
Индивидуальное проектирование дома
Выезд инженера на объект для оценки состояния участка и грунтов
Геологические изыскания
Фундамент
Работы нулевого цикла, отсяпка основания из песка и щебня
Монолитная ж/б плита (мин. 30 см.)
Стены
Внешние несущие стены/Устройство оконных и дверных перемычек/Устройство армопоясов
Перегородки
Возведение внутренних перегородок
Вентканалы и дымоходы
Устройство под монтаж дымоходов и вытяжек
Устройство шахты дымохода и вентканалов
Перекрытия
Перекрытие из ж/б пустотных плит/монолитное перекрытие (для двухэтажных домов с полноразмерным вторым этажом)
Стропильная система
Монтаж стропильной системы
Утепление кровли
Утепление кровли (Rockwool 200мм.)
Кровельное покрытие
Кровельное покрытие из металлочерепицы
Фасад
Внешняя отделка фасада (штукатурка с утеплителем)
Водосточная система
Устройство водосточной системы
Подшив свесов кровли
Обшивка свесов кровли
Отмостка
Устройство бетонной отмостки
Отделка цоколя
Отделка цоколя камнем/штукатуркой
Окна
Окна и балконные двери пластиковые (Двухкамерные Rehau, Melke)
Наружная входная дверь
Наружная металлическая дверь (утеплённая)
Внутренние инженерные коммуникации
Монтаж системы отопления/Водоснабжения/Водоотведения/Электрика/Монтаж щитка
Внутренняя отделка
Штукатурка внутренних стен
Стяжка пола
Финишная отделка внутренних стен, пола, потолков, установка межкомнатных дверей (Базовые решения от Lemana RPO)
Описание

Представляем вашему вниманию проект дома "Modern 273" – элегантный и современный двухэтажный дом площадью 273 м², созданный для комфортной жизни вашей семьи. Этот дом предлагает четыре просторные спальни, обеспечивая достаточно места для каждого члена семьи. "Modern 273" сочетает в себе современные архитектурные решения и использование качественных строительных материалов, что делает его идеальным выбором для тех, кто ценит комфорт и стиль. 

Архитектурный стиль

Архитектурный стиль дома "Modern 273" можно охарактеризовать как современная классика с элементами американского стиля. Основные черты этого стиля:

Симметрия и пропорциональность: Фасад дома отличается симметричным расположением окон и дверей, что создает гармоничный и сбалансированный внешний вид .

Четкие линии и геометрические формы: Прямые углы и четкие линии в архитектуре дома создают ощущение порядка и стабильности .

Использование традиционных материалов: В отделке фасада используются кирпич и светлые элементы, что придает дому классический и респектабельный вид .

Большие окна: Обеспечивают хорошее естественное освещение и визуальную связь с окружающей средой .

Двускатная крыша: Подчеркивает классический стиль дома и обеспечивает надежную защиту от непогоды .

Пристроенный гараж: Обеспечивает удобство и безопасность для вашего автомобиля, а также дополнительное пространство для хранения .

Преимущества проекта "Modern 273"

Просторная планировка: Четыре спальни обеспечивают комфортное размещение для всех членов семьи .

Пристроенный гараж: Обеспечивает удобный доступ к автомобилю и дополнительное пространство для хранения .

Материалы на выбор: При строительстве можно использовать газобетон, керамические блоки или кирпич, в зависимости от ваших предпочтений и бюджета . Каждый из этих материалов обладает своими преимуществами в плане теплоизоляции, долговечности и стоимости.

Энергоэффективность: Современные строительные материалы и технологии обеспечивают высокую энергоэффективность дома, что позволяет снизить затраты на отопление и кондиционирование .

Функциональность: Продуманная планировка обеспечивает комфортное проживание для всех членов семьи. Просторные комнаты, удобные санузлы и кухня создают идеальные условия для повседневной жизни .

Эстетика: Классический дизайн дома гармонично вписывается в любой ландшафт и подчеркивает ваш вкус и статус .

Индивидуализация: Возможность выбора материалов и отделки позволяет адаптировать проект под ваши индивидуальные потребности и предпочтения .

Двухэтажная конструкция: Оптимальное использование пространства участка, позволяющее разместить все необходимые помещения на относительно небольшой площади .

Описание материалов

Газобетон: Легкий и прочный материал с отличными теплоизоляционными свойствами. Идеален для строительства теплых и энергоэффективных домов .

Керамические блоки: Экологически чистый и долговечный материал с хорошей тепло- и звукоизоляцией .

Кирпич: Традиционный и проверенный временем материал, обеспечивающий прочность и надежность конструкции .

"Modern 273" – это отличный выбор для тех, кто ценит комфорт, стиль и надежность. Этот дом станет уютным и долговечным жилищем для вашей семьи на долгие годы .

Обзоры построенных проектов
Отзывы наших клиентов
Уже есть проект, эскиз или картинка?
Мы оперативно изготовим проект, рассчитаем и приступим к строительству в течение 1 недели!
Прикрепите файл к Вашему сообщению и мы сразу рассчитаем стоимость
Рассчитать
стоимость
Экскурсия
по объектам
Избранное 0 Видео-консультация