Строительство коттеджей из газобетона и керамических блоков под ключ

Hightech 290

Общая плошадь 290 м2
Количество этажей 2
Количество спален 4
Стоимость дома 8 700 000 руб.
Материал
Выбрать комплектацию
Получить расчёт
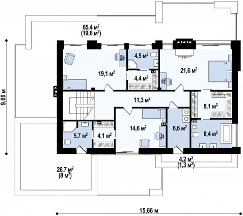
Планировка
1 этаж
2 этаж
Материал
Комплектация
Описание работы Стандарт
от  8 700 000  руб
Теплый контур
от  10 875 000  руб
"White box"
от  15 225 000  руб
Под ключ
от  17 400 000  руб
Подготовительные работы
Индивидуальное проектирование дома
Выезд инженера на объект для оценки состояния участка и грунтов
Геологические изыскания
Фундамент
Работы нулевого цикла, отсяпка основания из песка и щебня
Монолитная ж/б плита (мин. 30 см.)
Стены
Внешние несущие стены/Устройство оконных и дверных перемычек/Устройство армопоясов
Перегородки
Возведение внутренних перегородок
Вентканалы и дымоходы
Устройство под монтаж дымоходов и вытяжек
Устройство шахты дымохода и вентканалов
Перекрытия
Перекрытие из ж/б пустотных плит/монолитное перекрытие (для двухэтажных домов с полноразмерным вторым этажом)
Стропильная система
Монтаж стропильной системы
Утепление кровли
Утепление кровли (Rockwool 200мм.)
Кровельное покрытие
Кровельное покрытие из металлочерепицы
Фасад
Внешняя отделка фасада (штукатурка с утеплителем)
Водосточная система
Устройство водосточной системы
Подшив свесов кровли
Обшивка свесов кровли
Отмостка
Устройство бетонной отмостки
Отделка цоколя
Отделка цоколя камнем/штукатуркой
Окна
Окна и балконные двери пластиковые (Двухкамерные Rehau, Melke)
Наружная входная дверь
Наружная металлическая дверь (утеплённая)
Внутренние инженерные коммуникации
Монтаж системы отопления/Водоснабжения/Водоотведения/Электрика/Монтаж щитка
Внутренняя отделка
Штукатурка внутренних стен
Стяжка пола
Финишная отделка внутренних стен, пола, потолков, установка межкомнатных дверей (Базовые решения от Lemana RPO)
Описание

Дом «Hightech 290» — это воплощение современной архитектуры и передовых технологий. Этот двухэтажный дом площадью 290 м² с четырьмя спальнями предлагает идеальное сочетание стиля, комфорта и функциональности для современной семьи.

Архитектурный стиль:

Дом «Hightech 290» выполнен в стиле хай-тек, который характеризуется использованием современных материалов, строгими геометрическими формами и минималистичным дизайном . Для этого стиля характерны плоские крыши, большие окна, отсутствие декора и использование современных технологий 

Преимущества проекта:

Современный дизайн: Дом «Hightech 290» отличается стильным и современным дизайном, который подчеркивает индивидуальность владельца . Минималистичные формы и использование современных материалов создают ощущение легкости и простора .

Функциональность: В доме предусмотрены все необходимые помещения для комфортной жизни семьи . Просторные спальни, гостиная, кухня-столовая, кабинет и несколько ванных комнат обеспечивают удобство и функциональность .

Энергоэффективность: Дом построен с использованием современных технологий и материалов, что обеспечивает высокую энергоэффективность и снижает затраты на отопление и кондиционирование воздуха .

Терраса и бассейн: Дом имеет просторную террасу с бассейном, где можно отдохнуть и насладиться свежим воздухом .

Индивидуальный подход: Мы предлагаем возможность внесения изменений в проект дома «Hightech 290» в соответствии с вашими индивидуальными потребностями и предпочтениями . Вы можете выбрать отделочные материалы, планировку комнат и другие параметры, чтобы создать дом своей мечты.

Стоимость и комплектация:

В стоимость дома  входит:

Фундамент

Стены и перекрытия

Кровля

Окна и двери

Внешняя отделка

Дополнительно вы можете заказать внутреннюю отделку, установку сантехники и другие работы.

Дом «Hightech 290» — это отличный выбор для тех, кто ценит современный стиль, комфорт и функциональность. Свяжитесь с нами сегодня, чтобы узнать больше об этом проекте и начать строительство дома своей мечты! .

Обзоры построенных проектов
Отзывы наших клиентов
Уже есть проект, эскиз или картинка?
Мы оперативно изготовим проект, рассчитаем и приступим к строительству в течение 1 недели!
Прикрепите файл к Вашему сообщению и мы сразу рассчитаем стоимость
Рассчитать
стоимость
Экскурсия
по объектам
Избранное 0 Видео-консультация