Строительство коттеджей из газобетона и керамических блоков под ключ

Modern 175

Общая плошадь 175 м2
Количество этажей 2
Количество спален 4
Стоимость дома 5 250 000 руб.
Материал
Выбрать комплектацию
Получить расчёт
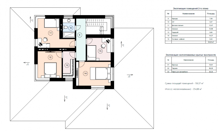
Планировка
1 этаж
2 этаж
Материал
Комплектация
Описание работы Стандарт
от  5 250 000  руб
Теплый контур
от  6 562 500  руб
"White box"
от  9 187 500  руб
Под ключ
от  10 500 000  руб
Подготовительные работы
Индивидуальное проектирование дома
Выезд инженера на объект для оценки состояния участка и грунтов
Геологические изыскания
Фундамент
Работы нулевого цикла, отсяпка основания из песка и щебня
Монолитная ж/б плита (мин. 30 см.)
Стены
Внешние несущие стены/Устройство оконных и дверных перемычек/Устройство армопоясов
Перегородки
Возведение внутренних перегородок
Вентканалы и дымоходы
Устройство под монтаж дымоходов и вытяжек
Устройство шахты дымохода и вентканалов
Перекрытия
Перекрытие из ж/б пустотных плит/монолитное перекрытие (для двухэтажных домов с полноразмерным вторым этажом)
Стропильная система
Монтаж стропильной системы
Утепление кровли
Утепление кровли (Rockwool 200мм.)
Кровельное покрытие
Кровельное покрытие из металлочерепицы
Фасад
Внешняя отделка фасада (штукатурка с утеплителем)
Водосточная система
Устройство водосточной системы
Подшив свесов кровли
Обшивка свесов кровли
Отмостка
Устройство бетонной отмостки
Отделка цоколя
Отделка цоколя камнем/штукатуркой
Окна
Окна и балконные двери пластиковые (Двухкамерные Rehau, Melke)
Наружная входная дверь
Наружная металлическая дверь (утеплённая)
Внутренние инженерные коммуникации
Монтаж системы отопления/Водоснабжения/Водоотведения/Электрика/Монтаж щитка
Внутренняя отделка
Штукатурка внутренних стен
Стяжка пола
Финишная отделка внутренних стен, пола, потолков, установка межкомнатных дверей (Базовые решения от Lemana RPO)
Описание

Дом «Modern 175» — это современный двухэтажный дом, выполненный в стиле минимализм . С общей площадью 175 м² и 4 спальнями, этот дом предлагает удобное и функциональное пространство для семьи с детьми .

Архитектурный стиль:

Дом «Modern 175» выполнен в стиле минимализм . Этот стиль характеризуется простотой форм, функциональностью и использованием натуральных материалов . Фасад дома выполнен в светлых и темных тонах, что придает ему элегантный и современный вид .

Преимущества проекта:

Современный дизайн: Дом «Modern 175» отличается современным и стильным дизайном, который подчеркивает индивидуальность владельца .

Функциональность: В доме предусмотрены все необходимые помещения для комфортной жизни семьи . Просторные спальни, гостиная, кухня-столовая и несколько ванных комнат обеспечивают удобство и функциональность .

Энергоэффективность: Дом построен с использованием современных технологий и материалов, что обеспечивает высокую энергоэффективность и снижает затраты на отопление и кондиционирование воздуха .

Терраса: В доме есть большая терраса, где вы можете приятно проводить время .

Индивидуальный подход: Мы предлагаем возможность внесения изменений в проект дома «Modern 175» в соответствии с вашими индивидуальными потребностями и предпочтениями .

Стоимость и комплектация:

В стоимость дома «Modern 175» входит:

Фундамент

Стены и перекрытия

Кровля

Окна и двери

Внешняя отделка

Дополнительно вы можете заказать внутреннюю отделку, установку сантехники и другие работы.

Дом «Modern 175» — это отличный выбор для тех, кто ценит современный стиль, комфорт и функциональность. Свяжитесь с нами сегодня, чтобы узнать больше об этом проекте и начать строительство дома своей мечты! .

Обзоры построенных проектов
Отзывы наших клиентов
Уже есть проект, эскиз или картинка?
Мы оперативно изготовим проект, рассчитаем и приступим к строительству в течение 1 недели!
Прикрепите файл к Вашему сообщению и мы сразу рассчитаем стоимость
Рассчитать
стоимость
Экскурсия
по объектам
Избранное 0 Видео-консультация