Строительство коттеджей из газобетона и керамических блоков под ключ

Modern 289

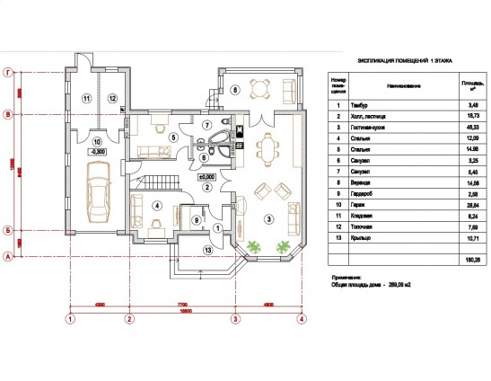
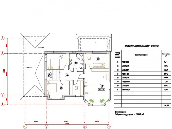
Общая плошадь 289 м2
Количество этажей 2
Количество спален 4
Стоимость дома 7 800 000 руб.
Материал
Выбрать комплектацию
Получить расчёт
Планировка
1 этаж
2 этаж
Материал
Комплектация
Описание работы Стандарт
от  7 800 000  руб
Теплый контур
от  9 750 000  руб
"White box"
от  13 650 000  руб
Под ключ
от  15 600 000  руб
Подготовительные работы
Индивидуальное проектирование дома
Выезд инженера на объект для оценки состояния участка и грунтов
Геологические изыскания
Фундамент
Работы нулевого цикла, отсяпка основания из песка и щебня
Монолитная ж/б плита (мин. 30 см.)
Стены
Внешние несущие стены/Устройство оконных и дверных перемычек/Устройство армопоясов
Перегородки
Возведение внутренних перегородок
Вентканалы и дымоходы
Устройство под монтаж дымоходов и вытяжек
Устройство шахты дымохода и вентканалов
Перекрытия
Перекрытие из ж/б пустотных плит/монолитное перекрытие (для двухэтажных домов с полноразмерным вторым этажом)
Стропильная система
Монтаж стропильной системы
Утепление кровли
Утепление кровли (Rockwool 200мм.)
Кровельное покрытие
Кровельное покрытие из металлочерепицы
Фасад
Внешняя отделка фасада (штукатурка с утеплителем)
Водосточная система
Устройство водосточной системы
Подшив свесов кровли
Обшивка свесов кровли
Отмостка
Устройство бетонной отмостки
Отделка цоколя
Отделка цоколя камнем/штукатуркой
Окна
Окна и балконные двери пластиковые (Двухкамерные Rehau, Melke)
Наружная входная дверь
Наружная металлическая дверь (утеплённая)
Внутренние инженерные коммуникации
Монтаж системы отопления/Водоснабжения/Водоотведения/Электрика/Монтаж щитка
Внутренняя отделка
Штукатурка внутренних стен
Стяжка пола
Финишная отделка внутренних стен, пола, потолков, установка межкомнатных дверей (Базовые решения от Lemana RPO)
Описание

Представляем вашему вниманию проект дома "Modern 289" – элегантный и функциональный двухэтажный дом площадью 289 м², созданный для комфортной жизни вашей семьи. Этот дом предлагает 4 просторные спальни, обеспечивая каждому члену семьи личное пространство. "Modern 289" сочетает в себе классические архитектурные элементы и современные решения, создавая уютное и стильное жилище. 

Архитектурный стиль

Архитектурный стиль дома "Modern 289" можно охарактеризовать как современная классика с элементами американского стиля и легким налетом ретро. Основные черты этого стиля:

Симметрия и пропорциональность: Фасад дома отличается симметричным расположением окон и дверей, что придает ему элегантный и гармоничный вид .

Использование натуральных материалов: В отделке фасада используются кирпич и светлая штукатурка, что придает дому классический и респектабельный вид .

Большие окна: Обеспечивают хорошее естественное освещение и визуальную связь с окружающей средой . Особенно выделяется арочное окно на втором этаже, которое придает дому особый шарм и индивидуальность.

Двускатная крыша: Подчеркивает классический стиль дома и обеспечивает надежную защиту от непогоды .

Пристроенный гараж: Обеспечивает удобство и безопасность для вашего автомобиля, а также дополнительное пространство для хранения .

Элементы декора: Наличие кованых элементов и фонарей придает дому изысканность и индивидуальность .

Преимущества проекта "Modern 289"

Просторная планировка: Четыре спальни обеспечивают комфортное размещение для всех членов семьи .

Пристроенный гараж: Обеспечивает удобный доступ к автомобилю и дополнительное пространство для хранения .

Материалы на выбор: При строительстве можно использовать газобетон, керамические блоки или кирпич, в зависимости от ваших предпочтений и бюджета . Каждый из этих материалов обладает своими преимуществами в плане теплоизоляции, долговечности и стоимости.

Энергоэффективность: Современные строительные материалы и технологии обеспечивают высокую энергоэффективность дома, что позволяет снизить затраты на отопление и кондиционирование .

Функциональность: Продуманная планировка обеспечивает комфортное проживание для всех членов семьи. Просторные комнаты, удобные санузлы и кухня создают идеальные условия для повседневной жизни .

Эстетика: Классический дизайн дома гармонично вписывается в любой ландшафт и подчеркивает ваш вкус и статус .

Индивидуализация: Возможность выбора материалов и отделки позволяет адаптировать проект под ваши индивидуальные потребности и предпочтения .

Двухэтажная конструкция: Оптимальное использование пространства участка, позволяющее разместить все необходимые помещения на относительно небольшой площади .

Описание материалов

Газобетон: Легкий и прочный материал с отличными теплоизоляционными свойствами. Идеален для строительства теплых и энергоэффективных домов .

Керамические блоки: Экологически чистый и долговечный материал с хорошей тепло- и звукоизоляцией .

Кирпич: Традиционный и проверенный временем материал, обеспечивающий прочность и надежность конструкции .

"Modern 289" – это отличный выбор для тех, кто ценит комфорт, стиль и надежность. Этот дом станет уютным и долговечным жилищем для вашей семьи на долгие годы 

Обзоры построенных проектов
Отзывы наших клиентов
Уже есть проект, эскиз или картинка?
Мы оперативно изготовим проект, рассчитаем и приступим к строительству в течение 1 недели!
Прикрепите файл к Вашему сообщению и мы сразу рассчитаем стоимость
Рассчитать
стоимость
Экскурсия
по объектам
Избранное 0 Видео-консультация