Строительство коттеджей из газобетона и керамических блоков под ключ

Zurich 410

Общая плошадь 410 м2
Количество этажей 2
Количество спален 3
Стоимость дома По запросу
Материал
Выбрать комплектацию
Получить расчёт
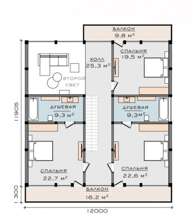
Планировка
Этаж 1
Этаж 2
Материал
Комплектация
Описание работы Стандарт
от  0  руб
Теплый контур
от  0  руб
"White box"
от  0  руб
Под ключ
от  0  руб
Подготовительные работы
Индивидуальное проектирование дома
Выезд инженера на объект для оценки состояния участка и грунтов
Геологические изыскания
Фундамент
Работы нулевого цикла, отсяпка основания из песка и щебня
Монолитная ж/б плита (мин. 30 см.)
Стены
Внешние несущие стены/Устройство оконных и дверных перемычек/Устройство армопоясов
Перегородки
Возведение внутренних перегородок
Вентканалы и дымоходы
Устройство под монтаж дымоходов и вытяжек
Устройство шахты дымохода и вентканалов
Перекрытия
Перекрытие из ж/б пустотных плит/монолитное перекрытие (для двухэтажных домов с полноразмерным вторым этажом)
Стропильная система
Монтаж стропильной системы
Утепление кровли
Утепление кровли (Rockwool 200мм.)
Кровельное покрытие
Кровельное покрытие из металлочерепицы
Фасад
Внешняя отделка фасада (штукатурка с утеплителем)
Водосточная система
Устройство водосточной системы
Подшив свесов кровли
Обшивка свесов кровли
Отмостка
Устройство бетонной отмостки
Отделка цоколя
Отделка цоколя камнем/штукатуркой
Окна
Окна и балконные двери пластиковые (Двухкамерные Rehau, Melke)
Наружная входная дверь
Наружная металлическая дверь (утеплённая)
Внутренние инженерные коммуникации
Монтаж системы отопления/Водоснабжения/Водоотведения/Электрика/Монтаж щитка
Внутренняя отделка
Штукатурка внутренних стен
Стяжка пола
Финишная отделка внутренних стен, пола, потолков, установка межкомнатных дверей (Базовые решения от Lemana RPO)
Описание
Фундамент
Монолитная плита
Закладные для подключения к внешним коммуникациям
Конструктив дома
Силовой каркас из клееного бруса (несущие балки 350 - 450 мм. / фасадные 200 - 350)
Стены, перекрытия (черновой пол - шпунтовая доска 75 мм.), окраска фасада в заводских условиях
Кровля (натуральная черепица BRAAS)
Фасадные окна: Безрамное остекление по технологии фахверк. Энергоэффективные стеклопакеты толщиной 40 мм. (энергосберегающее низкоэмиссионное стекло Guardian 6 см, наполнение стеклопакета инертным газом — аргоном, двухкомпонентный силиконовый герметик Dow Corning)
Энергоэффективное утепление стен (150 мм.) и кровли (200 мм.)
Входная дверь: Металлическая утепленная
Перечень работ
Работы нулевого цикла, монолитные работы
Сборка силового каркаса, фасадов (внешние стены), покраска внешней фахверковой части
Утепление стен, кровли (полный "пирог"), фасадные отделочные работы
Обзоры построенных проектов
Отзывы наших клиентов
Уже есть проект, эскиз или картинка?
Мы оперативно изготовим проект, рассчитаем и приступим к строительству в течение 1 недели!
Прикрепите файл к Вашему сообщению и мы сразу рассчитаем стоимость
Рассчитать
стоимость
Экскурсия
по объектам
Избранное 0 Видео-консультация